Série EL303

Real Time: 5 Visitor right now

Réfracteur prismatique carré intérieur / extérieur

EL303-CA
Matériel: Prismatique acrylique

CARACTÉRISTIQUES

* Ces lentilles sont utilisées pour l'éclairage intérieur ou extérieur, y compris pour les stations-service et les parcs de stationnement.

* Compatible avec les sources de lampes à DHI, halogènes et fluorescentes compactes et à LED montées verticalement ou horizontalement

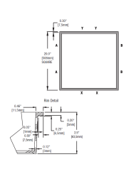
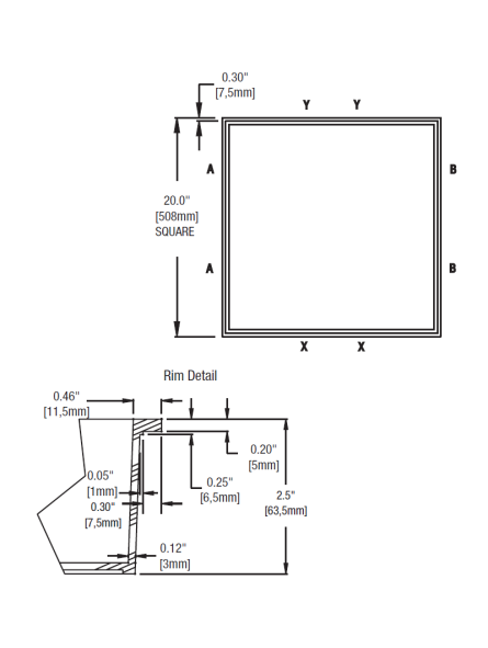
* Ces objectifs 20 "x 20" utilisent des configurations prismatiques uniques qui produisent un motif lumineux symétrique ou asymétrique pour une flexibilité de conception maximale

* Disponible en acrylique transparent ou en polycarbonate stabilisé aux UV

* Nominale jusqu'à 400W

* 20 "x 20" par 2 1/2 "profondeur taille finie

EL303-CA

Références spécifiques

Téléchargement

EL303 Series

Téléchargement (248.34KB)